2026年阳极板(以旧换新)询比采购邀请函
(采购编号:XB20260228-02)
陕西锌业有限公司因生产需要,拟采购阳极板一批(以旧换新),按照公司有关规定,拟通过询比方式确定供应商,欢迎具备相应资质及能力的单位参与该项目询比采购,具体内容如下:
一、采购项目基本要求
(一)采购人:陕西锌业有限公司
(二)采购项目名称:陕西锌业有限公司2026阳极板(以旧换新)采购项目
(三)交货时间:合同签订后20个日历天到货,不能按期交货的,注明供货周期。
(四)交货地点:采购方指定地点。
(五)采购货物一览表
5.1 货物名称及数量
编号 | 货物 名称 | 规格型号 | 数量 | 单位 | 送到单价 (元/块) | 总金额(元) | 备注 |
1 | 新购阳极板 | 见附图 | 套 | 500 | |||
2 | 旧阳极板回收 | 套 | 500 |
5.2、使用环境
5.2.1、液体介质:硫酸锌溶液,其中含H+:200g/L、F-:40-60mg/L、Cl-:500-800mg/L、PH<2、含固量10%左右,液体温度48度以下。
5.2.2、锌电解技术指标
槽电压 | 3.2~3.7v |
电 效 | >90% |
吨锌直流电耗 | <3000kw·h/吨锌 |
同极距 | 85mm |
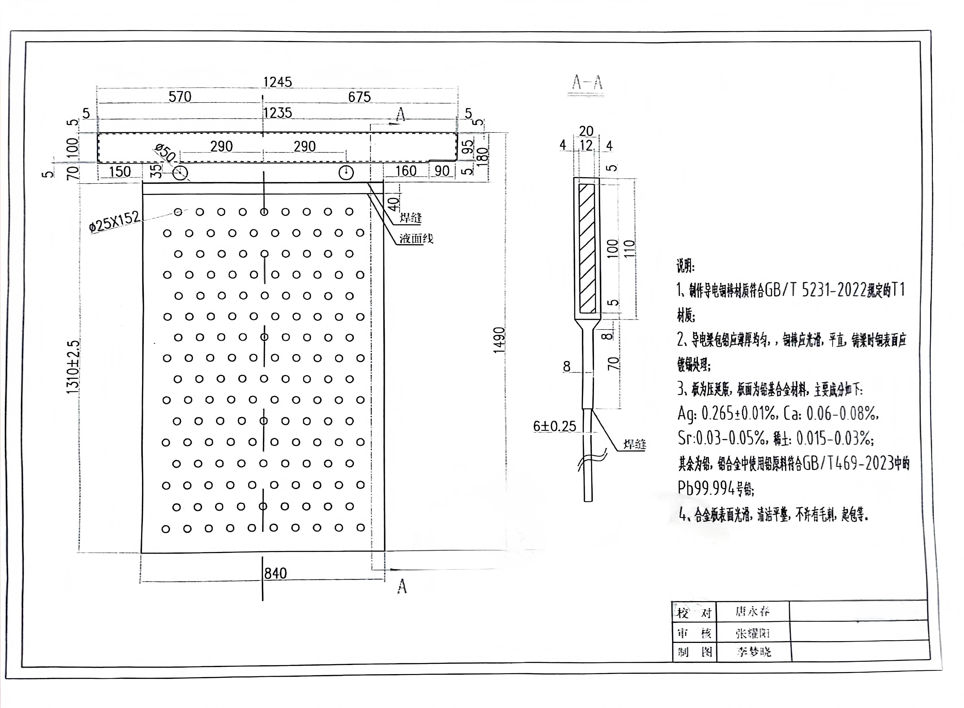
5.3、新购阳极板的Ag、Ca、Sr、稀土等元素含量见图纸;
5.4、旧阳极板回收按综合折算系数回收,回收单价=新板单价*综合折算系数。
(六)质量要求:
1、产品的设计及制造必须严格按照最新行业标准执行,质量符合国标要求。
2、所供产品必须有合格证、使用说明书、出厂质量检验报告单等,否则按不合格品对待。
3、质量保证期:质保期壹年,在质保期内出现货物质量问题供方无条件退换,如因货物质量问题给采购人造成损失的,供货方应承担相应的赔偿责任。
(七)运输方式及到达站港和费用负担:汽车运输,包装。运输费用由供方承担,运输车辆应加装符合国家安全管理需要的防火安全设备,如灭火器、防火罩等,否则不得进入采购人厂内。
(八)包装标准,包装物的供应及回收:标准包装,包装物不回收。
(九)验收标准、方法:依据本条第六款质量标准验收。
(十)付款方式:合同生效后,卖方开具合同总额30%的增值税发票(税率13%),买方预付合同总额的30%;货到买方厂内,初步验收合格,卖方开具合同总额30%的增值税发票(税率13%),买方再付合同总额的30%;安装调试完毕,验收合格后,卖方开具合同总额40%的增值税发票(税率13%),买方再付合同总额的30%;留10%作为质保金,质保期满无质量问题需方一次付清。卖方可按付款进度开具发票,也可一次性开具全额发票,但必须先票后款。
(十一)供应商资格和履约能力要求:
1.资质要求:
(1)供应商须为中华人民共和国境内依法注册的法人或者其他组织,有能力完成本项目的厂家或经销商,具备合法的营业执照。
2.信用要求:
(1)供应商具有良好的银行资信和商业信誉,没有处于被责令停业、财产被接管、冻结、破产状态(附承诺书);
(2)供应商不得在“信用中国-中国执行信息公开网”被列为失信被执行人;
3.业绩要求:供应商2022年9月至今具有类似业绩(提供合同复印件,时间以合同签订时间为准),不少于3份;未提供业绩的(即0份类似业绩),否决其响应文件。
4.联合体响应:本项目不接受联合体响应。
5.其他要求:
供应商不得存在下列情形之一:
(1)与采购人存在利害关系可能影响询比采购公正性;
(2)法定代表人(单位负责人)为同一人或者存在控股、管理关系的不同法人或其他组织同时参加询比采购;
(3)被依法暂停或者取消询比采购资格;
(4)被责令停产停业、暂扣或者吊销许可证、暂扣或者吊销执照;
(5)进入清算程序,或被宣告破产,或其他丧失履约能力的情形;
(6)在最近三年内发生重大产品质量问题;
(7)法律法规规定的其他情形。
二、询比采购文件的获取
询比采购文件在陕西锌业有限公司网络询比采购平台(www.sxxyjjpt.com)发布,符合条件的供应商可自行下载采购文件。
三、供应商响应
(一)响应报价
1.供应商应按“响应文件格式”要求在响应函中进行报价并填写响应文件的分项报价表。1、新购板中Ag、Cu最高限价以投报截止当日上海有色金属网信息价为准,2、旧板回收综合折算系数不低于80%。
2.报价包括设计费、制造费、运输费、税费、指导安装调试费以及采购人指定地点全包价。该价款不因原料、材料、劳务、能源等市场价格的变动而变动。
3.供应商在响应文件递交截止时间前修改响应函中的响应报价总额,应同时修改响应文件“分项报价表”中的相应报价。
4.响应报价为各分项报价金额之和,响应报价与分项报价的合价不一致的,应以各分项合价累计数为准,修正响应报价。
5.成交供应商的响应报价是成交、签订合同及合同执行过程中的依据,不得进行实质性变动。
(二)响应有效期
1.响应有效期从提交响应文件截止之日起算60天。
2.在响应有效期内,供应商撤销响应文件的,应承担询比采购文件和法律规定的责任。
(三)响应保证金
1.供应商在递交响应文件的同时,应按规定的响应保证金格式递交响应保证金2万元,并作为其响应文件的组成部分。
保证金支付账户如下:
收款人:陕西锌业有限公司
账号:26805701040010332
开户行:中国农业银行商洛商州区支行
2.响应保证金应当由供应商基本账户转出。
3.响应保证金必须在响应文件递交截止时间前到达指定帐户。
4.响应保证金有效期与响应有效期一致。
5.供应商不按前述要求提交响应保证金的,评审小组将否决其响应文件。
6.采购人最迟应当在与成交人签订合同后7日内,向未成交的供应商和成交人无息退还响应保证金。
7.有下列情形之一的,响应保证金将不予退还:
(1)供应商在响应有效期内撤销响应文件;
(2)成交人在收到成交通知后,成交人放弃成交项目的,无正当理由不与采购人订立合同的,在签订合同时向采购人提出附加条件或者更改合同实质性内容的。
(四)资格审查资料
供应商应按下列规定提供相关的证明材料,以证明其满足资质、财务、业绩、信誉要求。
1.“供应商基本情况表”应附供应商资格或者资质证书副本等材料的复印件,供应商为企业的,应提交营业执照复印件;供应商为依法允许经营的事业单位的,应提交事业单位法人证书和组织机构代码证的复印件。
2.“近三年完成的类似项目情况表”应附从2023年1月至今的合同复印件。
3.“近年发生的诉讼及仲裁情况”应说明相关情况。
四、响应文件的提交
(一)响应文件提交截止时间:2026年3月9日11时0分(北京时间);
(二)提交方法:提交方法:将响应文件密封后直接送达或邮寄至陕西锌业有限公司办公楼一楼招投标办公室。
邮递地址:陕西省商洛市商州区沙河子镇陕西锌业有限公司一楼招投标办公室
(三)逾期送达或者未送达指定地点的询比采购文件,询比采购人不予受理,报价通过密封送达或邮递的方式,未密封的报价按无效报价处理。(档案袋需要密封,并在封条上盖章,档案袋上需注明所投项目名称、报价人单位名称、报价人姓名、电话等信息,并盖章)。响应文件要求一正一副,胶装。
收件人:白浩楠 电话:18329587208
技术联系人:杜正锋 电话:18991560164
五、响应文件的评审
本项目评审采用折算单价最低价法,折算单价=新板采购单价-新板采购单价*旧板回收综合折算系数。
六、合同授予
(一)成交候选人公示
在陕西锌业有限公司网络采购平台www.sxxyjjpt.com公示成交候选人,公示期不少于3天。
(二)评审结果异议
供应商或者其他利害关系人对评审结果有异议的,应当在成交候选人公示期间提出。采购人在收到异议之日起3日内对异议作出答复;作出答复前,将暂停询比采购活动。
(三)成交候选人履约能力审查
成交候选人的经营、财务状况发生较大变化或存在违法行为,采购人认为可能影响其履约能力的,采购人招标办公室将在发出成交通知书前提请原评审小组按照询比采购文件规定的标准和方法进行审查和确认。
(四)确定成交人
采购人单位履行内部审批程序,根据评审小组的评审报告及成交人候选人名单确定成交人。
(五)签订合同
1.采购人和成交供应商应当在响应有效期内,且在收到成交通知之日起7日内,根据询比采购文件和成交人的响应文件订立书面合同。成交人无正当理由拒签合同,或者提出其他附加条件的,采购人有权取消其成交资格,其响应保证金不予退还;给采购人造成的损失超出响应保证金数额的,成交供应商还应当对超出部分予以赔偿。
2.发出成交通知书后,采购人无正当理由拒签合同的,或者提出其他附加条件的,采购人向成交人退还响应保证金;给成交人造成损失的,还应当赔偿损失。
七、纪律和监督
(一)供应商不得相互串通投标或者与采购人串通投标,不得向采购人或者评审小组成员行贿谋取成交,不得以他人名义投标或者以其他方式弄虚作假骗取成交;供应商不得以任何方式干扰、影响评标工作。
(二)评审小组成员及相关工作人员不得收受他人的财物或者其他好处,不得向他人透露对响应文件的评审和比较、成交候选人的推荐情况以及评标有关的其他情况。在评审活动中,评审小组成员应当客观、公正地履行职责,遵守职业道德,不得擅离职守,影响评审程序正常进行,不得使用“评审办法”没有规定的评审因素和标准进行评审。
(三)异议
1.供应商或者其他利害关系人认为采购人采购活动存在违法或违反平等自愿、公平诚信原则的,可以直接向采购人单位招标办公室提出异议。
2.招标办收到供应商提出的异议,应当依法、依规、妥善处理异议,并在收到异议之日起三个工作日内,对异议提出人做出答复。答复前,可暂停下一程序的采购活动。
3.对响应采购供应商提出的异议,如属异议提出人对相关问题理解有误的,招标办应做出解释;如经核查发现采购活动确实存在违法或违反本办法相关规定的,招标办应及时予以纠正或补救。
陕西锌业有限公司
2026年2月28日

陕公网安备